Prodej jedinečného domu ve Vlčicích u Trutnova
Prodej kompletně zrekonstruovaného domu s užitnou plochou 552 m2 a pozemky 6 497 m2.
Prodej kompletně zrekonstruovaného domu s užitnou plochou 552 m2 a pozemky 6 497 m2.
Nabízíme k prodeji jedinečnou nemovitost ve Vlčicích u Trutnova. Kompletně zrekonstruovaný dům s užitnou plochou 552 m2, který nabízí klid, dostatek soukromí pro bydlení ale i velký potenciál pro investici, například pro krátkodobé pronájmy, svatby nebo firemní akce.
Jedná se o zděnou stavbu se třemi nadzemními podlažími a pozemky 6 497 m2.
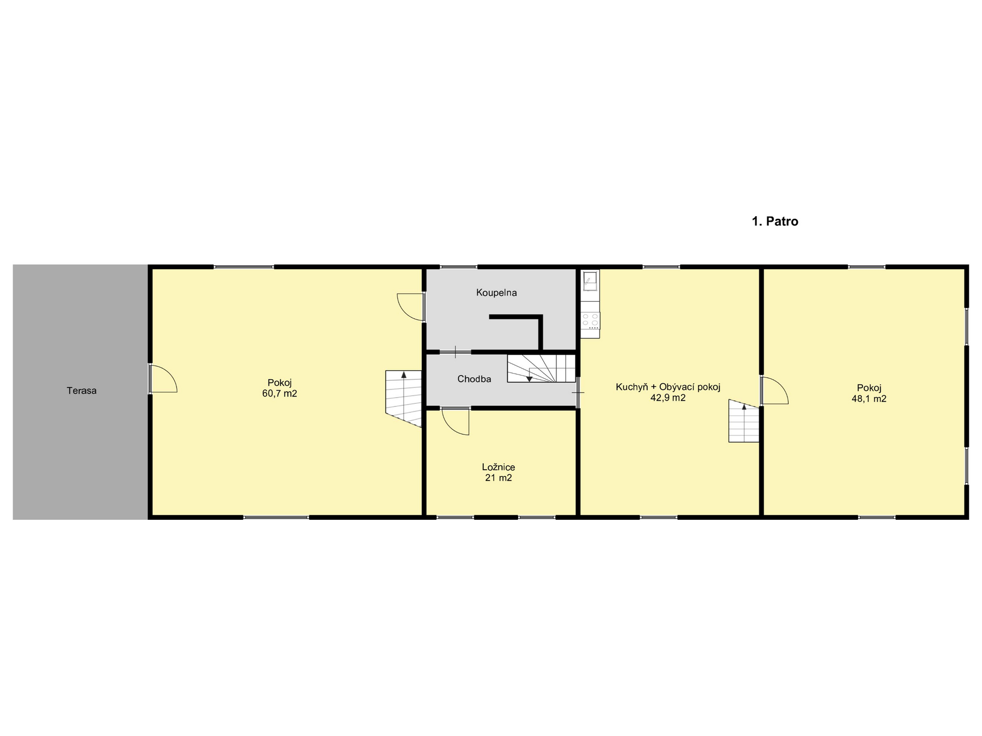
V přízemí domu se nacházejí 2 samotné bytové jednotky, které nabízejí možnost pronájmu nebo využití pro vícegenerační bydlení. V patře domu se nachází další byt s několika místnostmi. Dům je částečně podsklepený a sklep lze využít například jako vinárnu.
Vytápění je možné plynovým kotlem nebo kotlem na dřevo s rozvodem do radiátorů po celém domě. Dům má několik samostatných okruhů vytápění, které lze libovolně nastavit. Dále je možné topit krbovými kamny, které dodávají útulnější pocit domova. Dům je napojen na obecní vodovod, odpadní vody jsou svedeny do dvoukomorového septiku. V roce 2021 prošel dům kompletní rekonstrukcí.
Na zahradě se nachází velký vyhřívaný bazén se zastřešením napojený na tepelné čerpadlo, sauna a vířivka, které poskytují dokonalou relaxaci.K domu náleží garáže a zastřešené parkovací stání pro 6 aut. Pozemky, které patři k nemovitosti jsou zároveň zahrnuty v územním plánu pro možnost další výstavby RD.
Nemovitost je v současnosti využívána ke krátkodobým pronájmům a letní sezóna je již plně obsazena, což umožňuje novému majiteli plynule navázat na zavedený provoz. Díky rozloze objektu a přilehlých pozemků nabízí nemovitost také velký potenciál pro rozšíření podnikání, například o pronájmy pro svatby či firemní akce.
Dům se nachází v klidné části obce Vlčice, pouze 10 min. od Trutnova, 15 min. od Jánských Lázní nebo 20 min. od Pece pod Sněžkou.
Pro více informací, či sjednání prohlídky nás kontaktujte na tel. č. 774380384, emailu: zdenek.stepan@swisslife-select.cz.



Jmenuji se Zdeněk Štěpán a pracuji v oblasti realit a financí. Specializuji se na zprostředkování prodeje a pronájmu bytů, domů a pozemků. Svým klientům nabízím kompletní servis služeb.
Práce realitního makléře mě skutečně baví a snažím se ji odvádět na špičkové úrovni, proto se snažím neustále zlepšovat a vzdělávat.
Záleží mi na odvedení kvalitní práce a na spokojenosti klienta, proto ke každé nemovitosti přistupuji individuálně a snažím se vždy udělat maximum pro své klienty.
Díky naší spolupráci ušetříte čas a budu stát po Vašem boku, aby vše proběhlo bezpečně.
Pokud Vás cokoliv dalšího zajímá, neváhejte mě kontaktovat. Jsem tu pro vás.