Prodej nadstandardně prostorného bytu 4+1 v Trutnově – ul. Lípová
Byt o dispozici 4+1 s podlahovou plochou 117,25 m², možnost rozdělení na 2 byty.
Byt o dispozici 4+1 s podlahovou plochou 117,25 m², možnost rozdělení na 2 byty.
Nabízíme k prodeji nadstandardně prostorný byt o dispozici 4+1 v Trutnově, ul. Lípová, který zaujme především svou velikostí, dispozicí a výbornou dostupností do centra města.
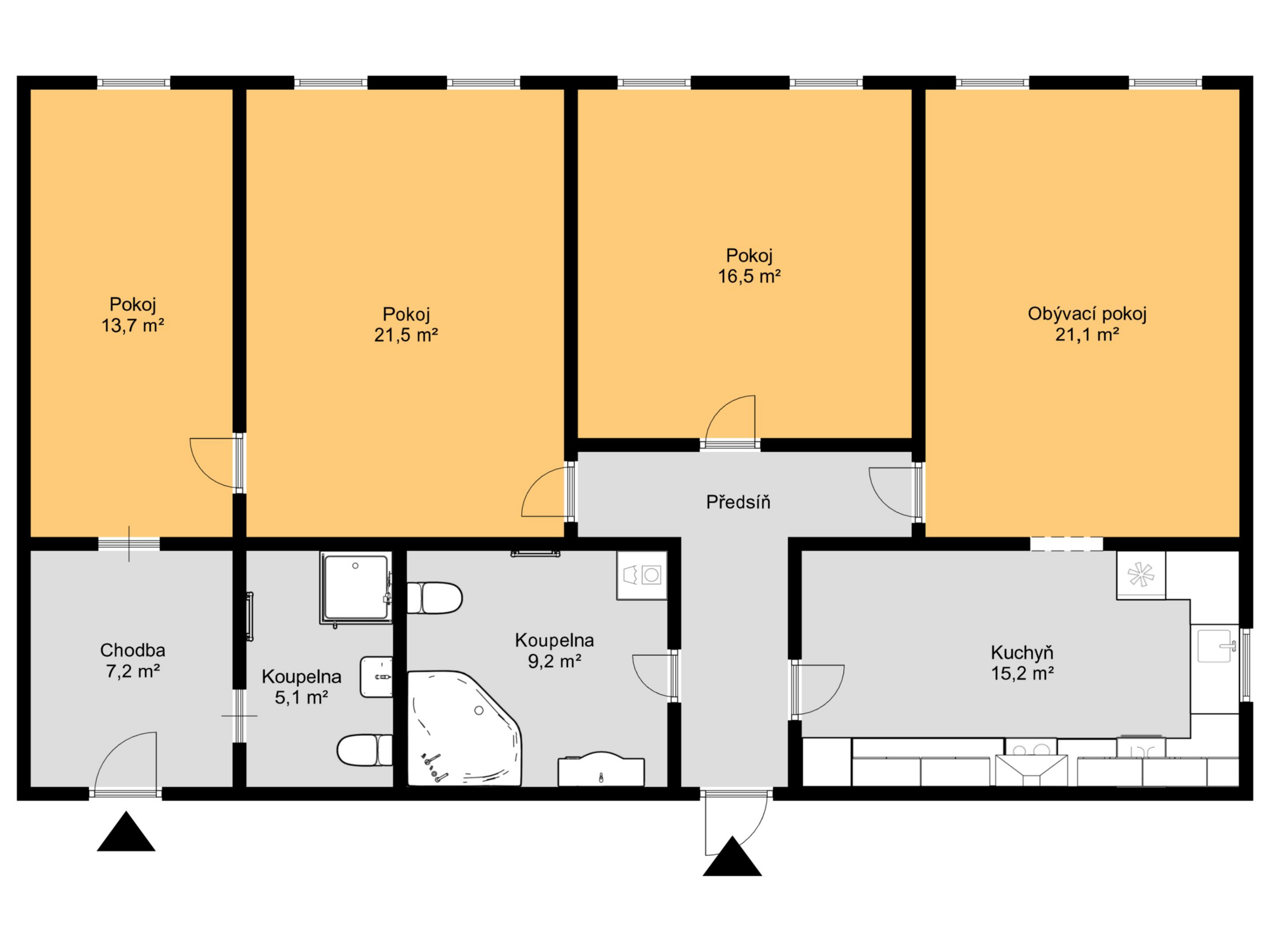
Bytová jednotka se nachází v přízemí zděného domu a její podlahová plocha je 117,25 m². K bytu náleží také sklep o velikosti 35 m².
Dispozice: vstupní chodba, kuchyně, prostorný obývací pokoj, tři samostatné pokoje a dvě koupelny, což zajišťuje komfort i pro větší rodinu.
Byt vznikl propojením dvou jednotek o dispozici 2+1 a v současné době tvoří jeden celek. V případě potřeby je možné opět rozdělit na dvě samostatné bytové jednotky.
Vytápění je řešeno podlahovým topením, které zajišťuje příjemný komfort bydlení. Vodovod obecní, odpadní vody svedeny do veřejné kanalizace. Dům je ve velmi dobrém stavu, udržovaný, s fungujícím SVJ.
Nemovitost se nachází v blízkosti centra Trutnova a v pěší vzdálenosti najdete kompletní občanskou vybavenost – školu, školku, obchody s potravinami, MHD, polikliniku a další služby. Pěší zóna a náměstí jsou vzdálené jen pár minut chůze.
Pro více informací nebo sjednání prohlídky mě kontaktujte na tel. 774 380 384, nebo e-mailu: zdenek.stepan@swisslife-select.cz. Rádi Vám zajistíme též financování koupě této nemovitosti, a to naším zkušeným hypotečním specialistou. Budeme se na Vás těšit u prohlídky.

Jmenuji se Zdeněk Štěpán a pracuji v oblasti realit a financí. Specializuji se na zprostředkování prodeje a pronájmu bytů, domů a pozemků. Svým klientům nabízím kompletní servis služeb.
Práce realitního makléře mě skutečně baví a snažím se ji odvádět na špičkové úrovni, proto se snažím neustále zlepšovat a vzdělávat.
Záleží mi na odvedení kvalitní práce a na spokojenosti klienta, proto ke každé nemovitosti přistupuji individuálně a snažím se vždy udělat maximum pro své klienty.
Díky naší spolupráci ušetříte čas a budu stát po Vašem boku, aby vše proběhlo bezpečně.
Pokud Vás cokoliv dalšího zajímá, neváhejte mě kontaktovat. Jsem tu pro vás.